This morning at Design Review Committee, conceptual approval was given to a proposed renovation of the international-style modernist building (above), originally designed as First Federal Savings and Loan headquarters by architect Charles McCauley. The new owner (Synergy Real Estate, LLC) plans a restaurant and bar on the ground floor, including a large outdoor patio with a stage for music. A small corner patio is carved out of the front of the building as well. The owner must return with more detail, and must separately satisfy the Central City neighborhood that noise from any outdoor stage won’t affect nearby residents. The owner’s representative stated that while they have not inked a lease yet, they are in serious discussions with two potential restaurateurs. The Columbus, GA design firm of 2WR prepared the preliminary renderings. The building is at the NW corner of Richard Arrington Blvd. and First Avenue North.
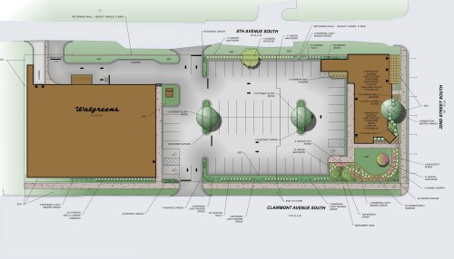
Additionally, the Committee approved the Walgreens concept for their new Clairmont Avenue location, with conditions–meaning the developer must return with revised plans. Among the conditions:
1. Create a more animated facade along Clairmont, relieving the expanse of blank brick currently shown;
2. Provide a main pedestrian entrance on Clairmont, in addition to the side parking lot entrance currently shown;
3. Reconsider the size of signage;
4. Show street context, including the modernist jewel of Henry Sprott Long, which would be overshadowed by the much larger drugstore. The current plan has the drugstore coming to within just a few feet of the side property line, leaving a total of perhaps 6 feet between the two buildings.
Stay tuned for more on both of these projects.
UPDATE: the Walgreens developer Connolly Net Lease and the local architect Blackmon Rogers have sent us the current site plan and Clairmont Avenue renderings (note Henry Sprott Long is located about 6′ to the left, or west, of the drugstore and about halfway back).



Do you have any pictures of the conceptual designs that you can share?
I’m awaiting permission from the architects/owners. Hopefully I’ll be able to. Thanks.
Nice news! Being a downtowner I am very excited about the First Federal Savings project. Jeremy, can you postthe preliminary rendering for this project?
I’ve asked the architect for permission, and will post it as soon as I get that! Thanks.
What is the status of the fire station?
Fire Station is being renovated as a two-tenant space, but no leases are signed. Supposedly the tenants would be the Triple Platinum hair salon and Bogue’s restaurant that are being demolished for the drugstore.
Modernist Redo- Very exciting! This is one of my favorate empty buildings downtown. I had always hoped someone would incorporate this building into a larger development that included the Brown-Marx Building. However, I can live with the project that was proposed today!
One of my favorites too. Supposedly the new owner has greater ambitions for the entire block, but I believe this building and its adjacent small parking deck are the only ones purchased so far.
That is very exciting news re: the potential redevelopment downtown. I am having trouble placing that building – can anyone tell me what intersection this is at?
Regarding the Walgreens, the Birmingham news has a few renderings up now (although its just the Walgreen’s building and not the fire station or the context). Unfortunately it looks like they did not take the neighborhood’s ideas about vintage signage seriously. In fact, it look kind of like they just took the old renderings and painted the brick a cream color. I am somewhat disappointed.
That is the northwest corner of 1st ave n and richard arrington. The image is the 1st Ave N face.
I’m very excited to hear there are plans for that building. Ever since the church left, that whole block face of 1st Ave N has been vacant. Does anyone know of any plans for the old Chamber building across the street?
The old Chamber building was bought, but I have not heard of any plans yet.
Sorry–Richard Arrington and First Avenue North–I corrected that in the post.
I just put the renderings up too–there were no “context” renderings illustrating the entire street, which I agree would be helpful. No vintage signage, which I agree would help tremendously.
Thank you for keeping us updated. Had wanted to attend the meeting this morning, but wilting shrubbery called at 6:00am this morning and kept me busy for the better part of 2 hours of hand watering.
I am delighted that the First Federal building is being ‘redeveloped’. Another light in downtown is turned on again.
Maybe vintage signage for Walgreens will yet be forthcoming….like their eventual response to the neighorhood’s comments and suggestions.
Thanks for reading, and yes I hope they keep revising it until it’s truly satisfactory to all. Or almost all, as I guess you can never please everybody!
Walgreen’s. Not happy with the site plan or the facade. Hope DRC is able to pull out a little more contextually appropriate design before this is over.
The only reason not to place the building in the middle of the site and have two smaller parking areas on either side, as far as I can see, is minimizing the curb cuts on Clairmont. I would rather see two curb cuts—with the drugstore in the middle and smaller parking areas on either side—than this lopsided, square peg in a round hole site plan with only one curb cut on Clairmont. Given that there are currently 7 driveway/curb cuts along the Clairmont frontage of the site, 2 would be a great improvement.
Hello
My name is Randy Manning , and i live in the Grayson Vally area , i do like the concept that they came up with for the Wal-Green and the old fire station. And also the plan restaurant and bar for the formally Federal Savings Building , but my main interest has been the Birmingham Airport and whats going on out there, with the terminal modernization work , I have been on there web site and read all the updates they have , but they do not give much details or pictures on the design of the terminal , and i was wondering if you might know if there is a web site that does or could i find it on maybe the company that is doing the work would, and do you know who the design partners are? And i have also wounder if the plan future 2nd runway is still in the works too? Me been a student Pilot and a aviation hobbyist that has been my main interest.
Thanks
KPS Group is doing the architectural work at the airport. I also have found it odd that, even now with construction underway, there are no big posters at the airport itself announcing progress, with renderings, etc. If you find more out let us know, and I will certainly do the same! Thanks for reading.
Currently, the only heavy construction going on at the airport is in the Auto Rental area (I’ve got some mechanical products going on all phases of construction). It should get finished in July or August – they’ll probably give a big update then. That will also be around the time that the heavy construction of Phase 1 will start – probably sometime in early Fall.
Since I only was concerned with the mechanical design, I didn’t notice a second runway. My guess would be there if there was one, it would get completed during Phase 2, probably around 2013 or 2014.
Pingback: Downward pressure | Bhamarchitect's Blog